A jövőd éppen most épül!

4504 Nyomtatás Ajánlás Facebook

Eladó újonnan épülő kétszintes lakás Hódmezővásárhely Új-Kishomok Városrészben!
Ha modern, energiatakarékos otthonra vágysz, egy csendes, fejlődő környéken, ne keresgélj tovább!
-Lokáció:Hódmezővásárhely, Új-Kishomok városrész – nyugodt környezet, folyamatosan épülő- és szépülő környék
-Kiváló közlekedés: a 47-es út közelében, Szeged csupán 20 perc autóval
A lakás jellemzői:
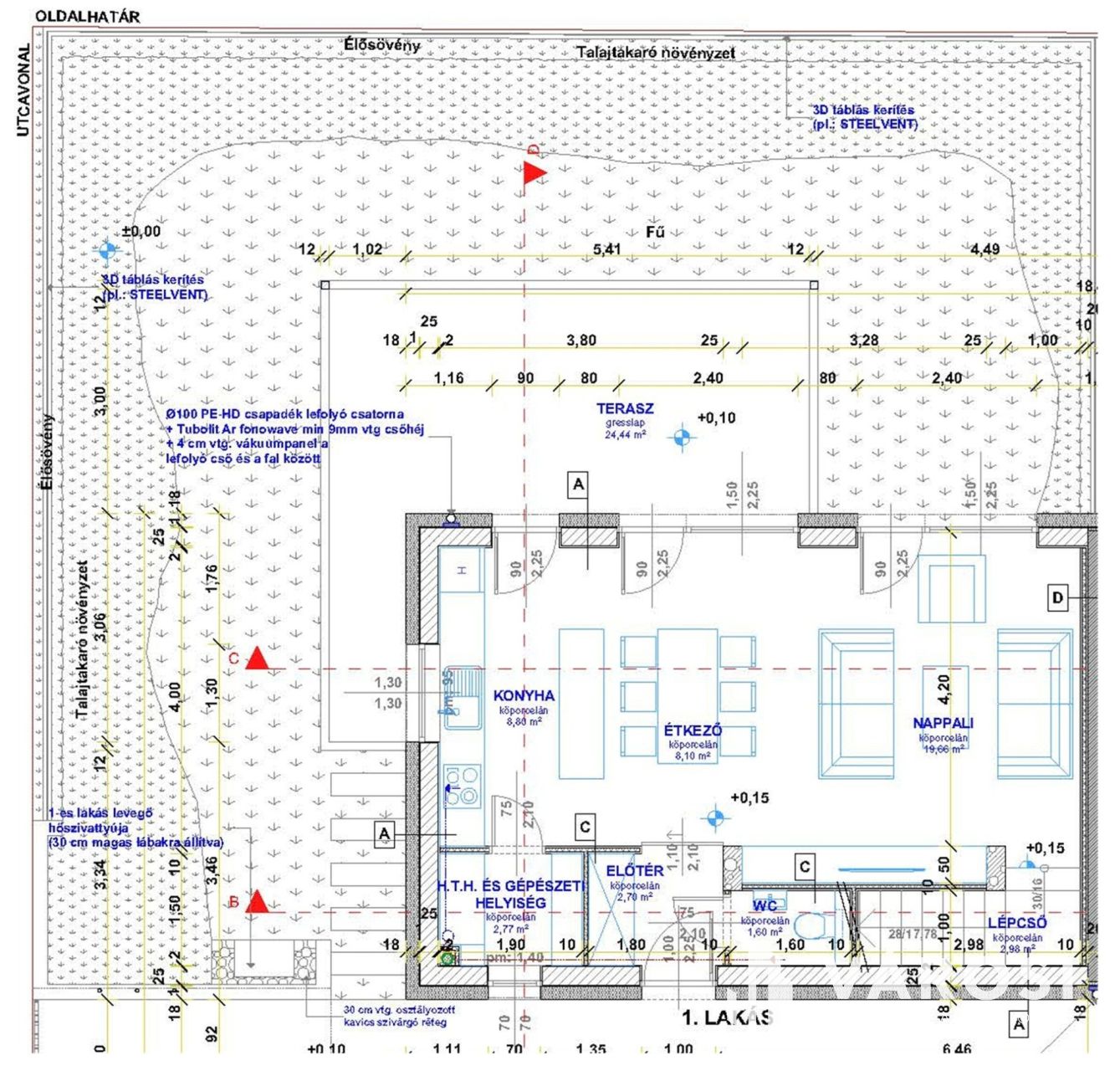
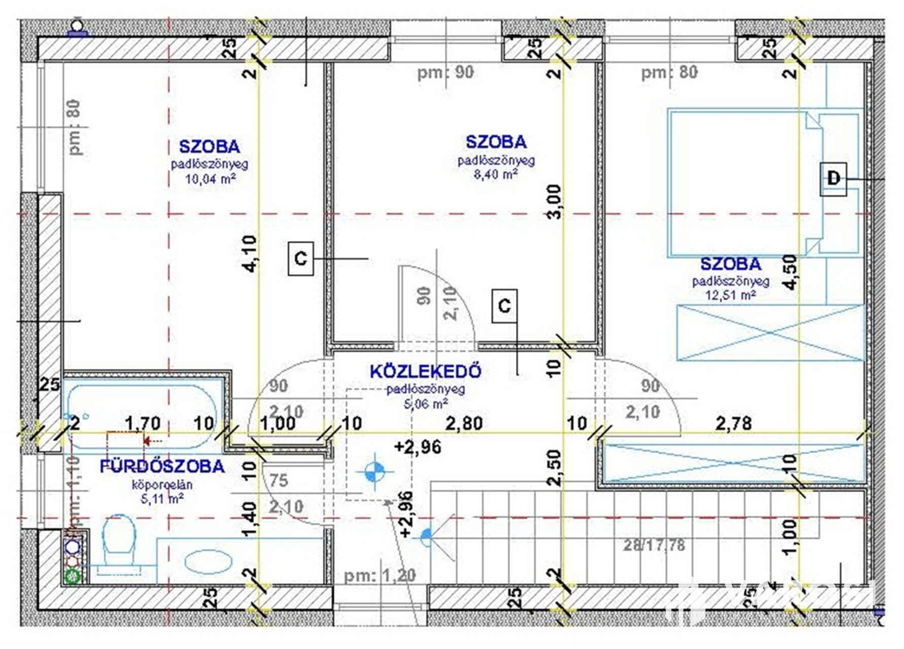
-Földszinti, belső kétszintes elrendezés
-Alapterület: 87,73 m² lakótér + 24,44 m² terasz + 120 m² saját kertrész
-Elosztás: nappali + 3 hálószoba, praktikus kialakítással
-Kulcsrakész állapotban kerül átadásra
Kiemelkedő műszaki tartalom:
-20 cm hőszigetelés és 3 rétegű üvegezés – kiváló hő- és hangszigetelés
-Padlófűtés és Fan-coil hűtés-fűtés hőszivattyúval – energiatakarékos, alacsony rezsi (H-tarifás áram)
-Aereco szellőzőrendszer hővisszanyerő légbeeresztőkkel – friss levegő, egészséges otthon
Extra kényelmi funkciók:
-Magas minőségű burkolatok (amelyeket a vevő ki tudja választani) és szaniterek a vételárban
-Földrengésbiztos vasbeton szerkezet
-Elektromos kapun át történő bejutás a zárt udvarba
Parkolás:
-Kulcsrakész, elektromos kapuval ellátott garázs vásárolható: 11.900.000 Ft
-További parkolási lehetőség az utcán

Ne maradj le erről a prémium lehetőségről – vidd haza álmaid otthonát most!

Kapcsolat:

Járai Viktória – Prémium Ingatlanértékesítő, Hiteltanácsadó
+36 30 705 3426
jarai.viktoria@varos.hu

Kulcsra kész ügyintézés – Neked csak költöznöd kell!
Lakásvásárlás előtt állsz? Nálunk nemcsak a tökéletes otthont találod meg, hanem a teljes háttérmunkát is levesszük a válladról:
-Díjmentes banki hitelügyintézés – több bank ajánlata egy helyen, személyre szabottan
-Ügyvédi háttér – biztos kezekben a szerződéskötés és a teljes jogi folyamat
-Teljeskörű támogatás – az első érdeklődéstől a birtokba adásig végigkísérünk
-Egyetlen kapcsolattartó, gördülékeny ügyintézés, maximális biztonság
Célunk, hogy a lakásvásárlás ne stressz, hanem élmény legyen!
Írj, hívj, és kezdjük el a közös munkát!
Járai Viktória- Prémium Ingatlanértékesítő, Hiteltanácsadó +36307053426 jarai.viktoria@varos.hu

Járai Viktória
PRÉMIUM

Járai Viktória

8 éve a Városi Ingatlaniroda tagja
Hiteltanácsadó, ingatlanértékesítő
Hódmezővásárhely
+36 (30) 705 3426
Észrevétel a hirdetéssel kapcsolatban
Egy ingatlanos naplója