Belső kétszintes családi fészek Alsóvároson

2052 Nyomtatás Ajánlás Facebook

Kedves Érdeklődő!

Eladó belső kétszintes új építésű tégla lakás Alsóvároson!

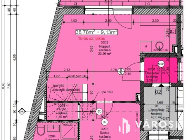
Eladó egy kivételes, belső szintes 68 m²-es kulcsrakész lakás, amely tökéletes választás lehet családok és párok számára egyaránt. A két szintes épület emeletén található ingatlan csendes utcában helyezkedik el, mégis remek közlekedési kapcsolatokkal rendelkezik.
A lakás három hálószobával, egy világos nappalival, valamint két fürdőszobával várja új lakóit. Az amerikai konyhának köszönhetően a közös tér barátságos és nyitott, ideális vendégek fogadására vagy a családi együttlétekre.

Az ingatlan prémium anyagok felhasználásával készült, talajszondás hőszivattyús fűtéssel, a lakásokon belül padlófűtéssel, fan-coil klímával, háromrétegű ablakokkal és külső hőszigeteléssel, amelyek biztosítják az alacsony fenntartási költségeket.

További kérdéseivel forduljon hozzám bizalommal!

Német Máté
PRÉMIUM

Német Máté

8 éve a Városi Ingatlaniroda tagja
Karrierigazgató, Ingatlanértékesítő
Szeged
+36 (30) 975 8764
Észrevétel a hirdetéssel kapcsolatban
Egy ingatlanos naplója