Bútorozott Luxuslakás Balatonföldváron – Azonnal költözhető

6451 Nyomtatás Ajánlás Facebook

Bútorozott Luxuslakás Eladó Balatonföldváron – Azonnal költözhető - Kedvező Céges Hitelkonstrukcióval

Fedezze fel Balatonföldvár legújabb prémium társasházát, ahol 1-től 5 szobás, modern kivitelezésű lakások várják Önt! A déli part népszerű üdülőhelyén található ingatlan tökéletes választás mind saját célra, mind befektetésként. Az épület felsőbb szintjein lévő lakások tágas teraszairól lenyűgöző balatoni panorámában gyönyörködhet, míg a földszinti lakásokhoz privát kertrész tartozik.

A lakópark nyugalmas környezetét a hatalmas, parkosított kert és a kültéri medence biztosítja, így ideális mind családok, mind azok számára, akik kiemelkedő hozamú befektetést keresnek.

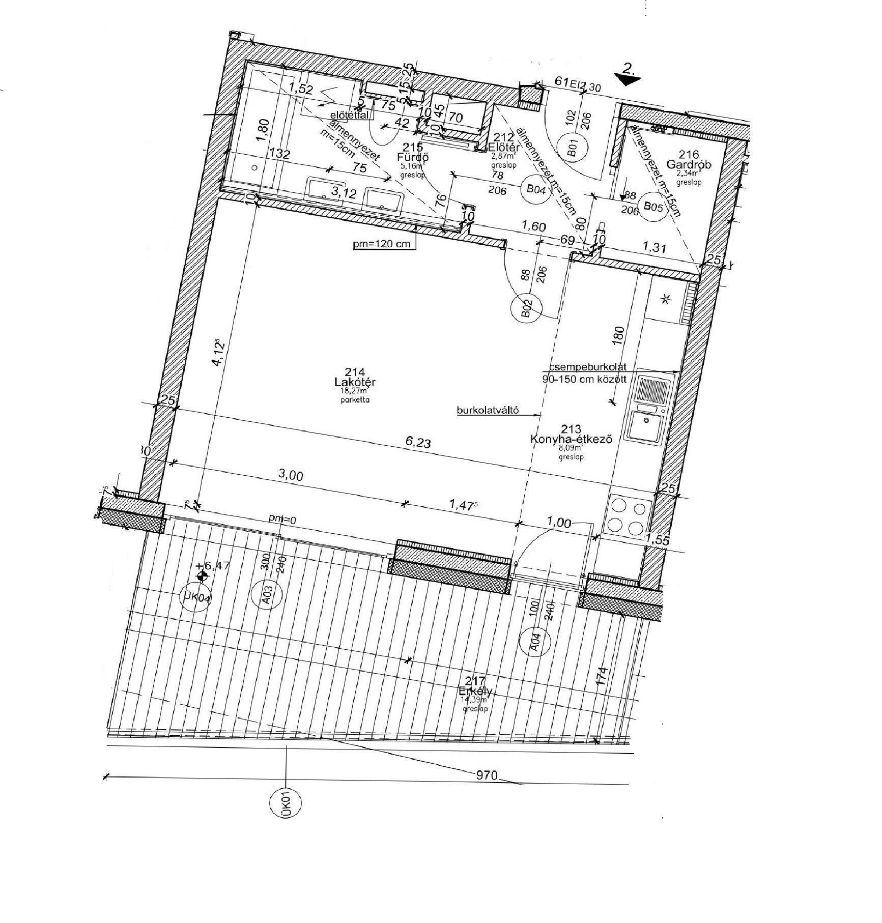
M-2.2 lakás
Ez az DK-i tájolású lakás 36,73 m²-es összterülettel rendelkezik, amely magában foglal:

Előteret (2,87 m²)
Fürdőszobát (5,16 m²)
Konyhát és étkezőt (8,09 m²)
Nappalit (18,27 m²)

+ 14,39 m²-es erkélyt

Kivitelezés és felszereltség
A kivitelező a megszokott magas színvonalat és funkcionalitást helyezte előtérbe. A lakások modern, hőszivattyús fűtési és hűtési rendszerrel, valamint korszerű gépészeti megoldásokkal felszereltek.

Az épületben összesen 8 szint található (pinceszint, földszint + 6 emelet), ahol 56 luxuslakás, autóbeállók és tárolók kerültek kialakításra. Az autóbeállók és tárolók a pinceszinten vagy a kertben vásárolhatók meg. A társasházban 13 fős lift szolgálja a lakók kényelmét.

Elhelyezkedés
A társasház elhelyezkedése kiváló: a Balaton partja mindössze 100 méterre található, a környék infrastruktúrája pedig kivételes. Minden fontos szolgáltatás, bolt sétatávolságra elérhető, a déli part legnagyobb kikötője pedig 3 perces sétával megközelíthető.

A lakáshoz tartozik egy tároló, mely 3,8 millió forintért kötelezően megvásárolandó.

További információ
Bankfüggetlen hitelcentrumunk segítséget nyújt a hitelügyintézésben. Az ingatlanok megtekintése kizárólag előre egyeztetett időpontban lehetséges. Telefonáljon és kérjen időpontot!

Furnished Luxury Apartment For Sale in Balatonföldvár - Ready to move in - With Favorable Company Loan Structure

Discover Balatonföldvár's newest premium condominium, where 1- to 5-room apartments with modern design await you! Located in a popular resort on the south coast, the property is a perfect choice both for your own purposes and as an investment. You can enjoy the impressive Balaton panorama from the spacious terraces of the apartments on the upper floors of the building, while the apartments on the ground floor have a private garden area.

The peaceful environment of the residential park is provided by the huge, landscaped garden and the outdoor pool, making it ideal for both families and those looking for an investment with an outstanding return.

Apartment M-2.2
This SE-facing apartment has a total area of ​​36.73 m², which includes:

Foyer (2.87 m²)
Bathroom (5.16 m²)
Kitchen and dining room (8.09 m²)
Living room (18.27 m²)

+ 14.39 m² balcony

Design and equipment
The contractor prioritized the usual high quality and functionality. The apartments are equipped with a modern heat pump heating and cooling system, as well as modern mechanical solutions.

There are a total of 8 levels in the building (basement, ground floor + 6 floors), where 56 luxury apartments, parking spaces and storage rooms have been created. Carports and storage can be purchased on the basement level or in the garden. The apartment building has a lift for 13 people for the convenience of the residents.

Location
The apartment building's location is excellent: the shore of Lake Balaton is only 100 meters away, and the infrastructure of the area is exceptional. All important services and shops are within walking distance, and the largest harbor on the southern coast can be reached within a 3-minute walk.

More information
Our credit center, which is independent of the bank, provides assistance in credit management. Viewing the properties is only possible by appointment. Contact us to make an appointment!

Vastag Ákos
PRÉMIUM

Vastag Ákos

2 éve a Városi Ingatlaniroda tagja
Ingatlanértékesítő, Karrierigazgató
Siófok
+36 (30) 311 2069
Észrevétel a hirdetéssel kapcsolatban
Egy ingatlanos naplója