Csodálatos és egyben energiatakarékos ház Röszkén

2148 Nyomtatás Ajánlás Facebook

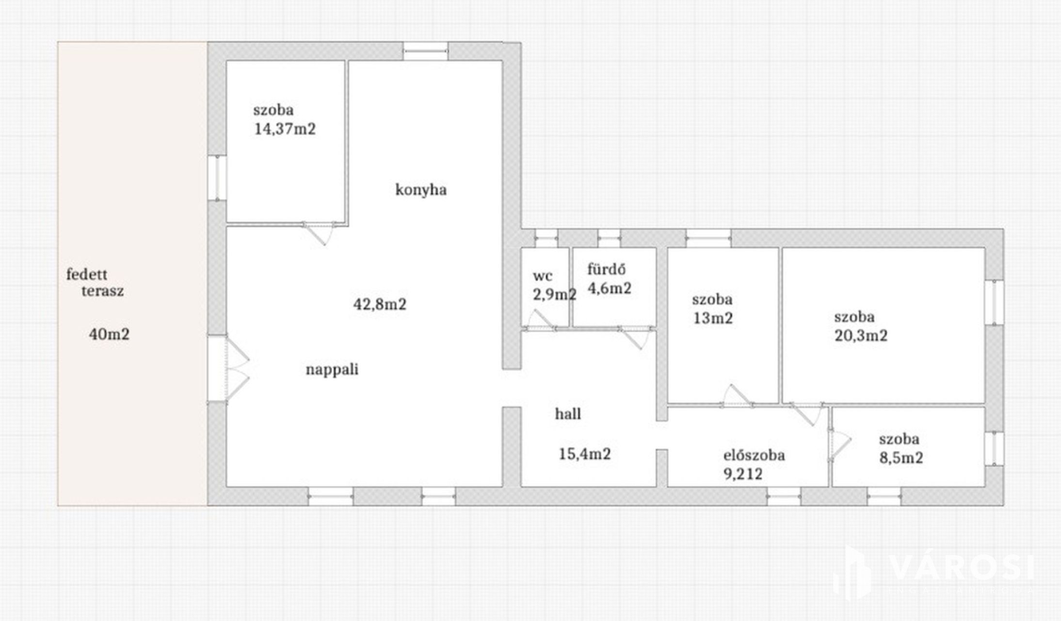
Eladó Röszkén egy igazán fenntartható, nagy élettérrel rendelkező, kiváló állapotú családi ház! Praktikus elrendezésének köszönhetően alkalmas nagyobb családoknak is. A ház két fázisban épült. Az eredeti vályogból épült házat, még az előző tulajdonos teljesen felújította és kibővítette a melléképületek irányába egy téglából épült szárnnyal. Így alakult ki a 131 négyzetméteres lakótér, amihez még tartozik egy 40 négyzetméteres fedett terasz, ami a nappaliból nyílik és a hátsó, parkosított kert felé tart kapcsolatot a házzal. A terasz tetején helyezkednek el a napkollektorok, a teraszon a gépészet külső egysége és a mellékhelységben a modern kombikazán mellett pedig a beltéri gépészet kapott helyet. A villanyszámla ennek segítségével évi 20 000 Ft rendszerhasználati díjban merül ki. 2020-ban tetőcsere és az előbb taglalt napelemes rendszer kiépítésével még inkább megújult az épület.
A bejárati ajtón belépve nagyméretű előszobába lépünk, ahonnan három hálószoba is nyílik, melyek közül a legnagyobb 20 négyzetméter, akár egy másik nappalinak is elmenne. Ha azonban balkézfelé megyünk tovább egy 15 négyzetméteres hallba jutunk, ahol hatalmas gardróbszekrény kapott helyet és innen nyílik a fürdőszoba és a mellékhelység, ahol a gépészet is el lett helyezve. A hallból az óriási méretű, majdnem 43 négyzetméteres, L alakú nappali-konyhába juthatunk egy széles ajtó nélküli falnyíláson. Rendkívül praktikusan lett a konyha kialakítva, mert bár egy légtérben van a nappalival, mégis az L-alakú kialakítás miatt nem zavarják egymást a konyhai folyamatok és a nappaliban űzött tevékenységek. Ha a 40 négyzetméteres terasz ajtaját is kinyitjuk, akkor egy hatalmas, 80 négyzetméteres teret kapunk a konyhától a kertig, ahol a családi és baráti rendezvények a lehető legkényelmesebben tarthatóak meg! És még nincs vége! A nappaliból nyílik még egy hálószoba, ami kiváló lehet dolgozószobának, vendégszobának vagy amit a fantáziánk csak szeretne. A szobák laminált padlóval fedettek, a nappali, a konyha, az előszoba, a fürdőszoba és a mellékhelyiség pedig hidegburkolatot kapott. A fűtés kombikazánról, radiátorokkal történik, de a klímát is lehet fűtésre használni. A szigetelésnek köszönhetően rendkívül alacsony a fűtési költség, télen 10000 Ft a gázszámla, míg nyáron mindössze 3000 Ft. A gyönyörűen karbantartott kertben a ház mellett, ahol díszkőburkolattal kialakított autóbeállási lehetőség lett kialakítva áll három lemezgarázs, hogy minden jármű biztonságban lehessen az időjárás viszontagságaitól. A kertben egy kicsi, de gyönyörű dísztó is helyet kapott! A környék gyönyörű, a ház tökéletes, ide már tényleg csak költözni kell!

A truly sustainable, spacious, and excellent condition family home is for sale in Röszke! Thanks to its practical layout, it is also suitable for larger families. The house was built in two phases: the original adobe house was completely renovated and extended by the previous owner with a brick-built wing towards the outbuildings. This resulted in a 131 sqm living space, which also includes a 40 sqm covered terrace opening from the living room, connecting the house to the landscaped backyard. Solar collectors are installed on the terrace roof, the outdoor unit of the engineering systems is on the terrace, and the indoor units are located in the utility room next to the modern combi boiler. Thanks to this system, the annual electricity bill is only about 20,000 HUF, covering the grid usage fee. In 2020, the roof was replaced and the solar panel system was installed, further modernizing the property.

Entering through the front door, you arrive in a spacious entryway, from which three bedrooms open. The largest of these is 20 sqm and could easily serve as a second living room. To the left, you’ll find a 15 sqm hall fitted with a large wardrobe, from where you can access the bathroom and utility room, which also houses the heating system. From the hall, a wide, doorless opening leads into the huge, nearly 43 sqm L-shaped living room with kitchen. The kitchen is very practically designed—while it is in the same open space as the living room, its L-shape ensures that kitchen activities and living room activities do not disturb each other. If you open the door to the 40 sqm terrace, you create a massive 80 sqm space from the kitchen to the garden, perfect for family and friends' gatherings in maximum comfort! And there’s more: from the living room, another bedroom opens, which could serve as a study, guest room, or anything else you wish. The bedrooms have laminate flooring, while the living room, kitchen, entryway, bathroom, and utility room have tile flooring. Heating is provided by a combi boiler with radiators, but the air conditioning can also be used for heating. Thanks to the insulation, heating costs are extremely low: in winter, the gas bill is only 10,000 HUF, and in summer just 3,000 HUF.

In the beautifully maintained garden, next to the house, there is a paved parking area and three metal garages to keep all your vehicles safe from the elements. There is also a small but beautiful ornamental pond in the garden! The area is wonderful, the house is perfect—you really just need to move in!

Rákai István

Rákai István

1 éve a Városi Ingatlaniroda tagja
Ingatlanértékesítő
Szeged
+36 (20) 259 1351
Észrevétel a hirdetéssel kapcsolatban
Egy ingatlanos naplója