Kodály utcában első emeleti, erkélyes lakás

1434 Nyomtatás Ajánlás Facebook

Nagykanizsa csendes átmenő forgalomtól mentes övezetében, a Kodály Zoltán utcában, vált eladóvá, ez a jó állapotban lévő, 1. emeleti, felújított, erkélyes lakás.
A tégla építésű társasház, már teljes panelprogramon már átesett, melynek köszönheti jó energetikai besorolását és szép esztétikus külső megjelenését.
A tulajdonosok által elvégzett felújítási munkálatok, melyek a 2019-es éveben történtek:
- homlokzati nyílászárok cseréje műanyag profilszerkezetűre,
- hideg melegburkolatok cseréje a teljes lakrészben,
- főbejárati ajtó és a beltéri ajtók cseréje,
- teljes fürdő felújítás, épített zuhannyal,
- konyha felújítása, új konyhabútor beépítése gránit munkalappal,
- teljes vízhálózat cseréje.
- a közlekedő részen, új beépített szekrény beépítése.
- villamoshálózat részleges cserje, (közlekedő, fürdő, konyha részben)
A lakás melegét egyedi gáz konvektorok biztosítják. Tájolás: kelet-nyugati melynek köszönhetően szép világos a lakrész.
Földszinten a lakáshoz közös tároló tartozik.
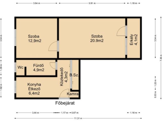
Belső lakrész helységei: konyha étkező, közlekedő, fürdő mellékhelységgel együtt, 1 szoba, 1 nappali melyhez erkélykapcsolat is tartozik.
Ha Ön szeretne egy jó elosztású, 1. emeleti felújított lakást, csendes zöld övezetben, akkor ez az ingatlan kiváló választás lehet.
Kulcs az irodában.
Iroda: Nagykanizsa Platán sor 7

Hohl József
PRÉMIUM

Hohl József

10 éve a Városi Ingatlaniroda tagja
Régióigazgató, ingatlanértékesítő
Nagykanizsa
+36 (30) 608 6857
Észrevétel a hirdetéssel kapcsolatban
Egy ingatlanos naplója