Munkásszálló eladó az ipari-parktól 1 percre Makón.

1169 Nyomtatás Ajánlás Facebook

Munkásszálló eladó az ipari-park közvetlen közelében,Makón.
Több mint lehetőség,talán inkább tökéletes befektetés az amit kínál ez az ingatlan,bevétel és profit szempontjából.A megnövekedett térségbeli beruházások ütemét nem tudta lekövetni a kiadó,jó minőségű,munkások elszállásolására alkalmas ingatlanok portfóliója a Megyében.Itt a lehetőség,hogy befektessen ebben a piaci űrben,hiszen az nem is kérdés,hogy a kereslet garantált ezen a területen.

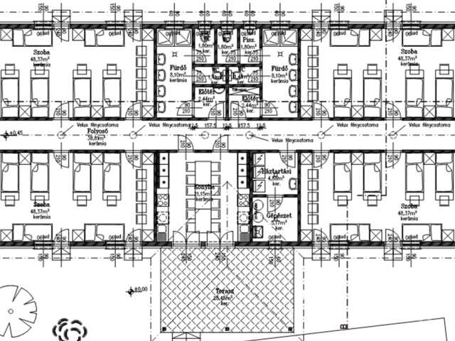
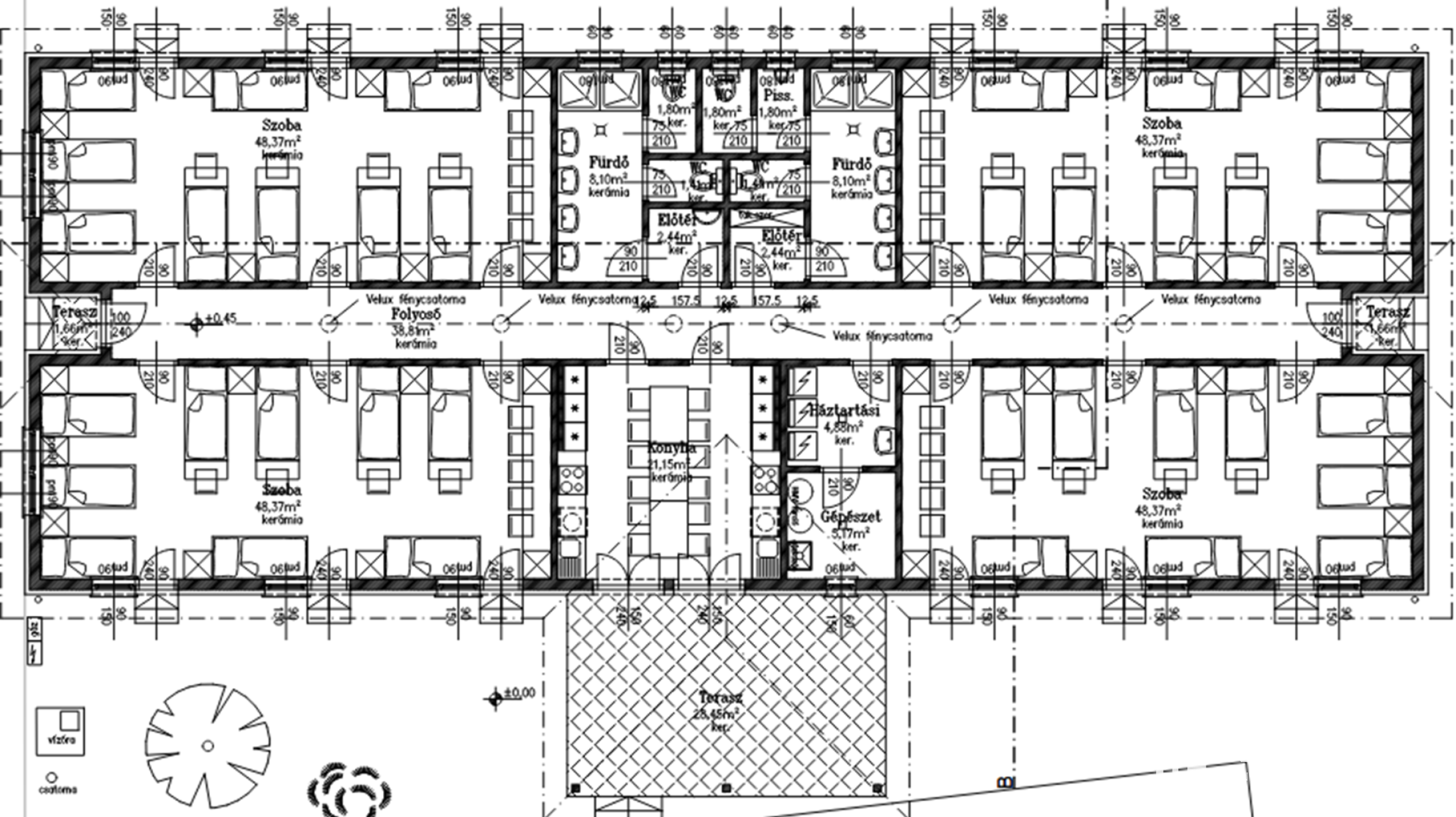
A telek területe:1217 m2
A munkásszálló hasznos alapterülete:324,54 m2
Befogadó képesség:36 Fő

Az ingatlannal kapcsolatban bármilyen kérdése felmerül.keressen bizalommal:Laczkó Szabolcs +36707713137

Laczkó Szabolcs
PRÉMIUM

Laczkó Szabolcs

7 éve a Városi Ingatlaniroda tagja
Ingatlanértékesítő
Szeged
+36 (70) 771 3137
Észrevétel a hirdetéssel kapcsolatban
Egy ingatlanos naplója