Nyugalom szigete Szanazugban

16998 Nyomtatás Ajánlás Facebook

Városi Ingatlaniroda eladásra kínál Gyula - Szanazugban, egy 816 m2-es zárt kertet.
A kertben 50 m2-es téliesített nyaraló, 24 m2-es faház, 21 m2-es nyári konyha és egy szerszámos tároló, mely alatt pince is található.

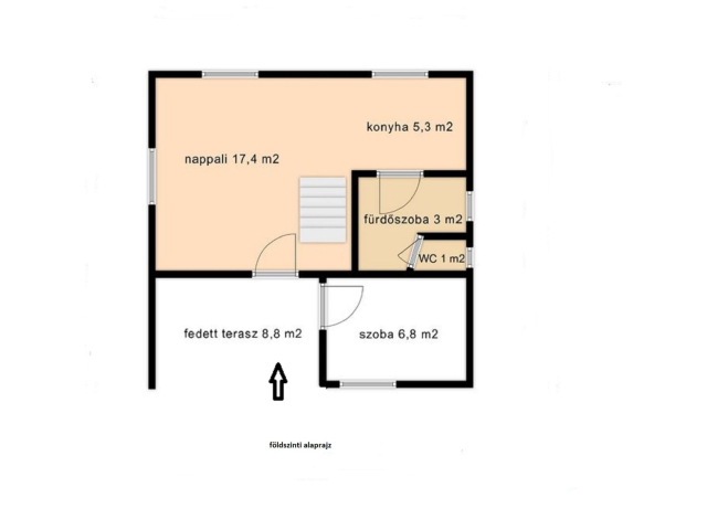
A nyaraló 2006-ban épült, tégla falazattal. Alsó szintjén nappali, szoba, konyha, fürdőszoba, WC került kialakításra és egy kanadallót is beépítettek, így az átmeneti és téli időszakban is használható az épület. Az emeleti részen egy teljes szoba és egy félszoba került kialakításra. A főépülethez tartozik egy 9 m2-es fedett terasz is.

A főépület mellett jó állapotú, cseréptetős, faház és lemeztetős nyári konyha is van. A két épületet külön külön bejárattal is rendelkezik, de ugyanakkor a faházból a nyári konyha közös nyíló ajtóval is megközelíthető.

Az udvaron kerti zuhany, kerti csap, tűzrakóhely és gyümölcsfák is található.
Környék rendezett. Főúttól 400 m-re zúzottköves úton közelíthető meg. Szanazugi strand 900 m-re, főút 400 m-re, buszmegálló 400 m-re , Gyula város Dobozi úti élelmiszerbolt 4,5 km érhető el. A főút mellett Gyula városába vezető új kerékpár út áll rendelkezésre.

Molnár János
PRÉMIUM

Molnár János

2 éve a Városi Ingatlaniroda tagja
Ingatlanértékesítő
Békéscsaba
+36 (70) 384 6653
Észrevétel a hirdetéssel kapcsolatban
Egy ingatlanos naplója