Panorámás, új építésű családi ház Demjénben–fürdők közelében

852 Nyomtatás Ajánlás Facebook

Új építésű, panorámás otthon Demjén egyik legjobb részén – ahol a nyugalom és az élmény találkozik
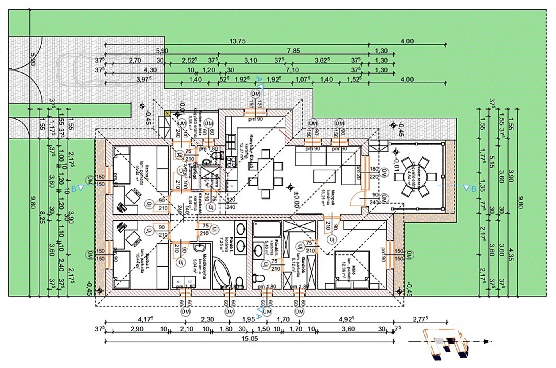
Demjén dinamikusan fejlődő, új építésű részén, a híres termálfürdők közvetlen közelében kínálunk megvételre egy 115 m²-es, egyszintes, nappali + 3 szobás, komfortos családi házat, amely már most kiváló választás mindazok számára, akik hosszú távon gondolkodnak – akár saját otthonként, akár értékálló befektetésként.
Az ingatlan egy 525 m²-es telken épül, csendes, mégis könnyen megközelíthető környezetben, mindössze 1-2 percre a főúttól, a Cascada Barlang- és Élményfürdő közelében. A lokáció különleges: egyszerre biztosítja a nyugodt, természetközeli életérzést és a környék folyamatosan növekvő turisztikai vonzerejét.
A ház kialakítása átgondolt és élhető: világos nappali kapcsolódik a konyha-étkezőhöz, három külön nyíló szoba, két fürdőszoba, gardrób, kamra és mosókonyha szolgálja a kényelmet, míg a fedett terasz tökéletes helyszíne lehet a pihenésnek vagy baráti összejöveteleknek. Az egyszintes kialakítás minden korosztály számára praktikus és időtálló megoldás.
A kivitelezés során korszerű, minőségi anyagokat alkalmaznak: masszív Ytong falazat, korszerű hőszigetelés, prémium nyílászárók redőnnyel és szúnyoghálóval, valamint hőszivattyús rendszerrel működő padlófűtés gondoskodik az alacsony fenntartási költségekről és a modern komfortérzetről. A burkolatok és szaniterek még választhatók, így az otthon valóban az új tulajdonos stílusára szabható.
Demjén az elmúlt években az egyik legkeresettebb településsé vált a térségben, nem véletlenül: a közeli Cascada barlangfürdő, a demjéni termálfürdők, az egerszalóki sódomb és Eger történelmi belvárosa mind néhány percen belül elérhetőek. A környék egyszerre kínál aktív kikapcsolódást és nyugodt hétköznapokat – ez az a kombináció, ami miatt az itt található ingatlanok értéke folyamatosan növekszik.
Az ingatlan szerkezetkész vagy kulcsrakész állapotban is megvásárolható, egyedi igényekhez igazított műszaki tartalommal és rugalmas fizetési ütemezéssel. Várható átadás: 2026 nyár vége - ősze.
Ez a ház nem csupán egy új építésű ingatlan – hanem egy tudatos döntés a jövőre nézve, egy olyan helyen, ahol élni és befektetni is érdemes.
Ne késlekedjen, keressen elérhetőségeimen még ma, nehogy más szeressen bele előbb!

New-build home with panoramic views in one of Demjén’s best areas – where peace and experience meet

In Demjén’s dynamically developing new-build district, in the immediate vicinity of the famous thermal baths, we offer for sale a comfortable, single-storey 115 m² family home with a living room + 3 bedrooms—an excellent choice for those thinking long term, whether as a private residence or as a value-preserving investment.

The property is being built on a 525 m² plot in a quiet yet easily accessible setting, just 1–2 minutes from the main road, near the Cascada Cave and Adventure Bath. The location is truly special: it offers a calm, nature-close lifestyle while also benefiting from the area’s steadily growing tourism appeal.

The layout is well thought-out and highly liveable: a bright living room connects to the kitchen–dining area; three separate bedrooms, two bathrooms, a walk-in wardrobe, pantry, and laundry room provide everyday comfort, while the covered terrace can be the perfect place to relax or host friends and family. The single-storey design is practical and timeless for all age groups.

Modern, high-quality materials are used throughout the construction: solid Ytong masonry, up-to-date thermal insulation, premium windows and doors with shutters and insect screens, and heat-pump underfloor heating ensure low running costs and a modern level of comfort. Floor and wall coverings as well as sanitary ware can still be selected, allowing the home to be tailored to the new owner’s style.

Demjén has become one of the most sought-after settlements in the region in recent years—and for good reason: the nearby Cascada cave bath, the Demjén thermal baths, the Egerszalók salt hill, and the historic downtown of Eger are all just minutes away. The area offers both active recreation and peaceful everyday living—a combination that keeps local property values on a steady upward trend.

The property can be purchased in shell-ready (structural) or turnkey condition, with technical specifications tailored to individual needs and a flexible payment schedule. Expected completion: late summer to autumn 2026.

This house is not just a new-build property—it is a conscious decision for the future, in a location that is worth living in and investing in.

Don’t wait—contact me today before someone else falls in love with it first!

Fekete Mátyás

Fekete Mátyás

1 éve a Városi Ingatlaniroda tagja
Ingatlanértékesítő
Parád
+36 (30) 474 0685
Észrevétel a hirdetéssel kapcsolatban
Egy ingatlanos naplója