Zsóry-fürdő: 3 szintes ház, 20 fő, kész lehetőség!

70 Nyomtatás Ajánlás Facebook

Háromszintes otthon a Zsóry-fürdőnél – nyaraló, családi ház és befektetés egyben

A Zsóry-fürdő nyugati, csendes nyaralóövezetében kínálunk megvételre egy 180 m²-es, háromszintes családi házat, amely lakóház besorolású, így egyszerre ideális állandó otthonnak, többgenerációs együttélésre vagy akár azonnal tovább üzemeltethető vendégházként is.

A ház egyik legnagyobb előnye, hogy minden szint külön bejárattal rendelkezik, így teljesen elszeparált lakrészek alakíthatók ki. A jelenlegi kialakítás lehetővé teszi akár 16–20 fő kényelmes elszállásolását, ami már most is működő vendégházként bizonyított: az ingatlan stabil vendégkörrel rendelkezik, a foglaltság szezonban folyamatos, igény esetén a működés zökkenőmentesen továbbvihető.

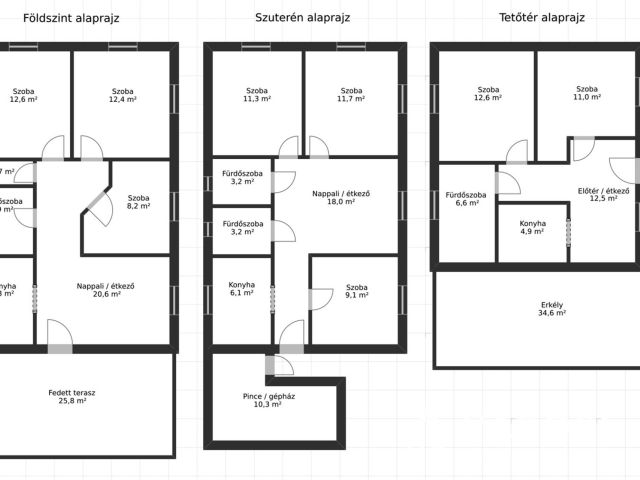
A szuterén szinten három szoba, nappali-étkező, konyha és két fürdőszoba került kialakításra, míg a földszint szintén három szobával, tágas közösségi térrel, konyhával, fürdővel és külön WC-vel rendelkezik, amelyhez egy 25 m²-es fedett terasz kapcsolódik. Az emeleti szint további két szobát, étkezőt, konyhát, fürdőt és egy 34 m²-es teraszt kínál, ahonnan kellemes kilátás nyílik a környékre.

A ház összesen 4 fürdőszobával és 5 WC-vel rendelkezik, ami vendégháznál és nagyobb családnál is kiemelkedő komfortot biztosít. A fűtésről gázcirkó gondoskodik, emellett két kandalló is hozzájárul a hangulatos, otthonos légkörhöz.

A 312 m²-es udvar praktikusan kialakított: helyet kapott benne egy fa játszótér, valamint egy szalonnasütő, ami ideális családi és baráti összejövetelekhez. A parkolás az udvaron belül és a ház előtt is kényelmesen megoldható.

Az ingatlan teljes berendezéssel kerül értékesítésre, így akár azonnal használatba vehető vagy tovább üzemeltethető. A Zsóry-fürdő közelsége, a nyugodt környezet és a jó megközelíthetőség egyaránt biztosítják, hogy ez az ingatlan hosszú távon is értéket képviseljen.

Ez a ház ritka lehetőség: egy helyen kínál otthont, pihenést és bevételi forrást.

Ne késlekedjen, keressen még ma, nehogy más szeressen bele előbb!

In the quiet western holiday-home area of Zsóry Bath, we offer for sale a 180 m², three-storey family house classified as a residential property, making it ideal as a permanent home, for multi-generational living, or even as an immediately operable guesthouse.

One of the house’s greatest advantages is that each floor has its own separate entrance, allowing fully independent living units to be created. The current layout can comfortably accommodate 16–20 guests, and the property has already proven itself as a successfully operating guesthouse: it has a stable returning clientele and continuous occupancy during the season. If desired, the business can be taken over and continued smoothly.

On the basement level, there are three rooms, a living/dining area, a kitchen, and two bathrooms. The ground floor also offers three rooms, a spacious communal area, a kitchen, a bathroom and a separate toilet, plus a 25 m² covered terrace. The upper floor provides two additional rooms, a dining area, a kitchen, a bathroom, and a 34 m² terrace with a pleasant view of the surroundings.

Altogether, the house features 4 bathrooms and 5 toilets, ensuring outstanding comfort both for guesthouse use and for a larger family. Heating is provided by a gas combi boiler, and two fireplaces add to the cosy, homely atmosphere.

The 312 m² yard is practical and well designed, featuring a wooden playground and a bacon-roasting/fire pit area, ideal for family and friends’ gatherings. Parking is conveniently available both inside the yard and in front of the house.

The property is sold fully furnished, so it can be used immediately or continued as an operating guesthouse. The proximity to Zsóry Bath, the peaceful environment and easy accessibility all ensure that this property will retain its value in the long term.

This house is a rare opportunity—offering a home, relaxation and a source of income all in one.

Don’t wait—contact us today before someone else falls in love with it first!

Fekete Mátyás

Fekete Mátyás

1 éve a Városi Ingatlaniroda tagja
Ingatlanértékesítő
Parád
+36 (30) 474 0685
Észrevétel a hirdetéssel kapcsolatban
Egy ingatlanos naplója